Giải thích 70+ ký hiệu thang máy trong bản vẽ đơn giản, dễ hiểu

Bản vẽ chi tiết không chỉ giúp đánh giá mức độ phù hợp với không gian hiện có mà còn hỗ trợ quá trình giám sát, thi công và lắp đặt diễn ra chính xác. Việc hiểu rõ các ký hiệu thang máy trong bản vẽ sẽ giúp bạn nắm được cấu trúc, thiết kế và cơ chế vận hành của thang trong căn nhà. Bài viết dưới đây sẽ giới thiệu các ký hiệu thường gặp và các mẹo đọc bản vẽ một cách dễ dàng.
1. Bản vẽ thang máy là gì? 3 thành phần quan trọng của một bản vẽ
Bản vẽ thang máy không chỉ là những nét vẽ trên giấy mà là tài liệu thiết kế quan trọng, giúp kỹ sư và chuyên gia hiểu rõ cấu trúc, kích thước và phương thức lắp đặt thang máy. Nhờ bản vẽ, mọi chi tiết được theo dõi chặt chẽ, đảm bảo thang máy vận hành an toàn và hiệu quả.
Các thành phần chính của bản vẽ thang máy bao gồm:
- Mặt cắt thang máy: Mặt cắt thể hiện chi tiết cấu trúc của thang máy theo một mặt phẳng cắt, giúp kỹ sư quan sát kết cấu chi tiết và đảm bảo không có rào cản trong quá trình lắp đặt.
- Kích thước và tỷ lệ: Kích thước và tỷ lệ chính xác sẽ giúp đơn vị thi công dễ hình dung và lắp đặt thang máy nhanh chóng, đảm bảo an toàn. Ví dụ, ký hiệu “1:50” nghĩa là 1 đơn vị trên bản vẽ tương ứng 50 đơn vị ngoài thực tế.
- Chi tiết kỹ thuật: Chi tiết kỹ thuật bao gồm thông số từng bộ phận, loại vật liệu sử dụng và các yếu tố an toàn. Các chi tiết kỹ thuật được tính toán, chú thích chính xác sẽ giúp gia chủ, đơn vị thi công dễ dàng hình dùng và giám sát công trình.

2. Cách đọc hiểu ký hiệu thang máy trong bản vẽ
Để hiểu rõ ký hiệu thang máy trong bản vẽ, trước tiên cần phân loại theo loại thang và từng bộ phận được thể hiện. Dưới đây là hướng dẫn chi tiết giúp bạn nắm bắt thông tin nhanh chóng:
2.1. Ký hiệu bản vẽ thang máy trục vít
Khi thiết kế và lắp đặt thang máy trục vít, bản vẽ là tài liệu quan trọng giúp thể hiện chi tiết kích thước, cấu trúc và yêu cầu kỹ thuật. Các bản vẽ thường bao gồm: giếng thang máy, cửa thang máy và bảng điều khiển.
1 – Bản vẽ giếng thang máy
Bản vẽ giếng thang thể hiện mặt cắt ngang, mặt cắt dọc, kích thước ô chờ và các thông số kỹ thuật cần thiết để phục vụ quá trình thi công lắp đặt.
| Ký hiệu / Chi tiết | Ý nghĩa |
| A, B, C, D, E | Đại diện cho các mặt cắt của giếng thang. |
| Fixing points | Các điểm cố định khung giếng thang trên tường hoặc kết cấu bê tông, đảm bảo ổn định và cân bằng trong quá trình vận hành. |
| Thép/Kính | Vật liệu cấu tạo vách giếng thang. Thường dùng thép sơn tĩnh điện cho khung chịu lực và kính cường lực 2 lớp. |
| Power: 3x400V 50 – 60Hz | Yêu cầu nguồn điện 3 pha 400V, tần số 50/60Hz. |
| Capacity: 400.0 kg | Tải trọng thiết kế của thang là 400 kg (tương ứng 4 – 5 người). |
| Approved by builder | Xác nhận bản vẽ đã được phê duyệt bởi đơn vị sản xuất Kalea Lifts trước khi thi công. |
| ISO 2768-1 m | Tiêu chuẩn quốc tế về dung sai cho các kích thước tuyến tính và góc, áp dụng cho quá trình sản xuất và lắp đặt để đảm bảo độ chính xác. Chữ “m” thể hiện cấp dung sai trung bình, nghĩa là trong quá trình tính toán, đơn vị sản xuất và lắp đặt cần đảm bảo sự cân bằng giữa khả năng sản xuất và độ chính xác. |


2 – Bản vẽ cửa thang máy
Bản vẽ cửa thang thể hiện chi tiết cạnh cửa, chân cửa, mặt bằng mở cửa, điểm an toàn và tổng thể khung bao cửa. Đây là tài liệu kỹ thuật quan trọng, giúp kỹ sư và đơn vị thi công xác định chính xác kích thước lắp đặt và vị trí các chi tiết cơ khí.
| Ký hiệu | Ý nghĩa |
| 900, 1000 | Chiều rộng tổng thể khung cửa (thay đổi tùy model). |
| 2314,5 | Chiều cao tổng thể của khung cửa. |
| 730, 830 | Kích thước chiều rộng của phần khung và cửa kính. |
| 85 | Kích thước chiều rộng của viền cửa |
| A (1:5) | Mặt cắt dọc cửa, tỷ lệ 1:5, thể hiện chi tiết cấu tạo khung, viền và kính. |
| Ratio 1:20, Ratio 1:30 | Tỷ lệ bản vẽ so với thực tế, với 1 đơn vị đo trên bản vẽ tương ứng với 20/30 đơn vị đo trong thực tế. |
| Approved by builder | Bản vẽ đã được phê duyệt để đưa vào sản xuất. |
| ISO 2768-1 m | Tiêu chuẩn quốc tế về dung sai cho các kích thước tuyến tính và góc, áp dụng cho quá trình sản xuất và lắp đặt để đảm bảo độ chính xác. Chữ “m” thể hiện cấp dung sai trung bình, nghĩa là trong quá trình tính toán, đơn vị sản xuất và lắp đặt cần đảm bảo sự cân bằng giữa khả năng sản xuất và độ chính xác. |


3 – Bản vẽ bảng điều khiển thang máy
Bản vẽ bảng điều khiển mô tả chi tiết bố cục màn hình cảm ứng, các phím bấm chức năng, đèn báo hiệu và bố trí tay vịn trong cabin. Một số chi tiết bạn cần lưu ý gồm:
| Ký hiệu | Ý nghĩa |
| Touchscreen Display | Màn hình cảm ứng LCD hiển thị tầng hiện tại, hướng di chuyển và các biểu tượng điều khiển (mở cửa, đóng cửa, gọi cứu hộ, bật/tắt đèn). |
| 1, 2, 3, 4 | Các nút cảm ứng chọn tầng, hiển thị rõ ràng trên giao diện màn hình. |
| G | Là Ground, chỉ tầng thấp nhất mà thang máy có thể đi xuống |
| B | Là Basement, chỉ tầng hầm, là tầng nằm dưới tầng G |
| Emergency Stop Button | Nút dừng khẩn cấp màu đỏ, được bố trí nổi bật bên cạnh bảng điều khiển, đảm bảo thao tác nhanh trong tình huống cần thiết. |
| Call & Intercom Function | Tích hợp hệ thống liên lạc nội bộ (Intercom) giúp kết nối với bên ngoài khi có sự cố. |


Lưu ý: Riêng dòng thang máy Kalea, do sử dụng công nghệ trục vít nên phòng máy được tích hợp ngay phía sau bảng điều khiển. Vì vậy, dòng thang này không cần bố trí phòng máy riêng trong bản vẽ thiết kế như nhiều loại thang máy thông thường.

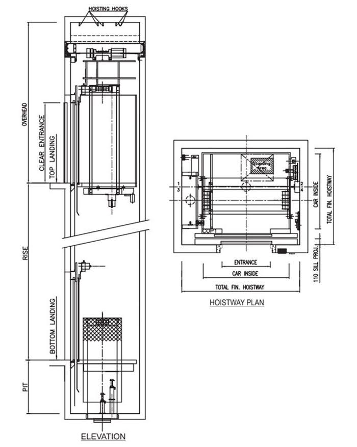
2.2. Ký hiệu bản vẽ thang máy cáp kéo
Bản vẽ thang máy cáp kéo thể hiện chi tiết các bộ phận như giếng thang, phòng máy và sơ đồ điện.
1 – Bản vẽ giếng thang máy
Bản vẽ giếng thang mô tả chi tiết kích thước, cấu trúc và các yếu tố kỹ thuật quan trọng.
| Ký hiệu | Ý nghĩa |
| NF | Tầng trên cùng (tầng kỹ thuật hoặc tầng mái). |
| XF | Tầng X (ví dụ 1F là tầng 1). |
| D | Chiều rộng giếng thang, được đo ở phần dưới cùng. |
| G | Khoảng cách từ mép giếng thang đến vách kính hoặc khung. |
| K | Ký hiệu phần cắt hoặc chi tiết mở rộng, dùng để xem kỹ thuật tại một vị trí cụ thể. |
| pít X | Độ sâu hố pít là X mm (ví dụ pít 120) tính từ mặt sàn thấp nhất đến đáy hố. |
| Mặt cắt cạnh giếng thang | Thể hiện chi tiết các bộ phận bên trong như khung thép, vách kính và khoảng không. |
| VIEW “K” | Góc nhìn chi tiết hoặc mặt cắt cụ thể giúp hiểu rõ cấu trúc giếng thang. |
| Khung giếng thang, vách kính | Mô tả cấu trúc giếng thang bằng khung thép, có thể kết hợp vách kính để tăng tính thẩm mỹ và an toàn. |
| C, A | Ký hiệu vị trí liên kết hoặc điểm bắt đầu/kết thúc của khung thép, vách kính. |
| Mũi tên nghiêng | Biểu thị hướng mặt cắt hoặc hướng di chuyển của cabin thang máy. |
2 – Bản vẽ hố pít thang máy
Bản vẽ hố pít thể hiện đầy đủ yêu cầu kỹ thuật và cấu trúc của hố pít.
| Ký hiệu | Ý nghĩa |
| Bê tông cốt thép hố pít | Lớp bê tông gia cố dưới đáy hố nhằm mục đích chịu lực và chống thấm. |
| Ống chờ đấu nối | Nơi đặt các ống dây điện, dây cáp chờ sẵn để kết nối hệ thống điều khiển thang máy. |
| Tủ điều khiển thang máy (Chiều rộng x Chiều sâu x Chiều cao) | Kích thước của tủ điều khiển được trình bày theo thứ tự chiều rộng, chiều sâu, chiều cao. |
| Bê tông cốt thép Mác X | Yêu cầu sử dụng loại bê tông cốt thép có Mác phù hợp (ví dụ Mác 250) |
| Bê tông thành hố pít (thép Ø Xmm) | Yêu cầu sử dụng thép có đường kính Ø Xmm (ví dụ Ø 220mm) để gia cố thành hố pít. |
| Mặt cắt A–A | Thể hiện cấu trúc bên trong của hố pít theo mặt cắt ngang. |
| Mũi tên | Thể hiện hướng di chuyển của thang máy hoặc hướng nhìn trong các mặt cắt. |
3 – Bản vẽ phòng máy
Bản vẽ phòng máy thể hiện đầy đủ các thông số quan trọng, bao gồm kích thước và vị trí lắp đặt phòng máy. Ngoài ra, bản vẽ còn chỉ rõ vị trí gắn móc treo Palăng, quạt thông gió và lỗ kéo máy.
| Ký hiệu | Ý nghĩa |
| X, Y, A, B | Các ký hiệu kích thước chiều dài và chiều rộng của phòng máy |
| W | Chiều rộng cabin thang máy |
| BM, AM | Ký hiệu cho các mặt cắt bổ sung hoặc vị trí thanh giằng |
| Control Panel | Tủ điều khiển |
| Vent, Windows | Vị trí lắp đặt cửa sổ hoặc quạt thông gió trong phòng máy |
| Lighting Outlet | Điểm lắp đặt đèn chiếu sáng cho khu vực xung quanh thang máy |
| Power Receiving Box | Hộp nhận điện |
| By Owner | Thiết bị hoặc vị trí do chủ đầu tư cấp và lắp đặt |
| Mũi tên | Chỉ hướng di chuyển của cabin thang máy hoặc hướng nhìn trong các mặt cắt |
| T.A | Ký hiệu cho các mặt cắt chi tiết hoặc điểm liên kết an toàn |
| Vent, Fan | Vị trí lắp đặt quạt hoặc hệ thống điều hòa đảm bảo thông gió, nhiệt độ ổn định |
| Lighting Outlet (trong phòng) | Điểm lắp đặt đèn chiếu sáng bên trong, phục vụ bảo trì và sửa chữa |
4 – Bản vẽ sơ đồ điện thang máy
Bản vẽ sơ đồ điện thang máy mô tả chi tiết các thiết bị điện, hệ thống bảo vệ và mạch điều khiển dòng điện. Nội dung thường được chia làm hai phần chính là sơ đồ mạch điều khiển và sơ đồ tủ điều khiển.
- Ký hiệu trong sơ đồ mạch điều khiển:
| Ký hiệu | Ý nghĩa |
| CHUYỂN MẠCH | Bộ chuyển mạch dùng để điều khiển dòng điện tới các thiết bị khác nhau. |
| RƠLE THỜI GIAN (R1, R2) | Relay thời gian điều khiển việc đóng/cắt dòng điện sau khoảng thời gian cài đặt. |
| CT1, CT2 | Biến dòng (Current Transformer) dùng để đo dòng điện đi qua thiết bị. |
| AT1, AT2 | Aptomat (CB) bảo vệ quá tải hoặc ngắn mạch cho hệ thống. |
| 380V | Điện áp chính cung cấp cho toàn bộ hệ thống thang máy. |
| Dây pha (L1, L2, L3) | Các dây pha mang điện áp 380V. |
| Dây trung tính (N) | Dây không mang điện áp, giúp cân bằng dòng điện. |
- Ký hiệu trong sơ đồ tủ điều khiển:
| Ký hiệu | Ý nghĩa |
| ỔN ÁP | Bộ ổn áp duy trì điện áp ổn định cho thiết bị trong hệ thống. |
| ĐÈN THAO TÁC | Đèn báo hiệu trạng thái hoạt động (bình thường, sự cố, quá tải). |
| KH1, KH2 | Công tắc hành trình (Limit Switch) kiểm soát vị trí cabin. |
| MOTOR | Động cơ thang máy (kéo cáp hoặc thủy lực tùy loại). |
| CẦU CHÌ ĐÓNG NGẮN | Thiết bị bảo vệ, tự động ngắt khi quá tải hoặc chập điện. |
| Cầu dao (CB) | Ngắt bảo vệ từng phần hệ thống khi quá tải/ngắn mạch. |
| MCP (Motor Control Panel) | Bảng điều khiển động cơ, bao gồm bảo vệ và điều khiển tốc độ. |
| Bộ điều khiển tín hiệu | Điều khiển tín hiệu lên/xuống, mở cửa, dừng tầng. |
3. 4 lưu ý khi đọc bản vẽ thang máy
Khi đọc bản vẽ thang máy, bạn cần nắm rõ một số nguyên tắc cơ bản để hiểu được tổng thể thiết kế và mối liên hệ giữa các bộ phận. Dưới đây là 4 lưu ý quan trọng:
- Các ký hiệu trên bản vẽ có quy ước chung: Tất cả bản vẽ kỹ thuật đều sử dụng các ký hiệu chuẩn để truyền tải thông tin chi tiết về vật liệu, vị trí lắp đặt và các bộ phận.
- Đọc bản vẽ theo thứ tự hợp lý: Để tránh nhầm lẫn khi tiếp cận bản vẽ lần đầu, nên đọc theo trình tự: bản vẽ mặt bằng phối cảnh tổng thể từng tầng, bản vẽ mặt cắt hai cạnh khu vực thang máy, bản vẽ chi tiết giếng thang, và cuối cùng là bản vẽ tổng thể thang máy.
- Chú ý đến tỷ lệ bản vẽ: Bản vẽ thang máy có nhiều tỷ lệ phổ biến như 1:5, 1:10, 1:50, 1:100, 1:200,… Các tỷ lệ này thể hiện mối quan hệ giữa kích thước trên bản vẽ và kích thước thực tế.
- Chấp nhận sai số nhỏ khi thi công thực tế: Kích thước trên bản vẽ đã đảm bảo độ chính xác tối đa, nhưng trong quá trình triển khai thực tế, đơn vị thi công vẫn sẽ nhận thấy một vài sai số nhỏ. Các kỹ thuật viên cần xử lý linh hoạt để lắp đặt chính xác, tối ưu không gian và giảm chi phí, đồng thời đảm bảo vận hành thang máy an toàn.

4. 3 mẹo đọc ký hiệu thang máy trong bản vẽ nhanh chóng
Để đọc nhanh và hiểu đúng các ký hiệu trên bản vẽ thang máy, bạn có thể áp dụng 3 mẹo hữu ích sau:
- Đọc chú thích và bảng legend: Bảng chú thích (legend) đã cung cấp thông tin chi tiết về các ký hiệu, đường nét và các yếu tố trên bản vẽ để người dùng có thể đọc hiểu bản vẽ tốt hơn.
- Tham khảo tài liệu hướng dẫn chuyên ngành: Các tài liệu kỹ thuật về thang máy sẽ trang bị cho bạn kiến thức nền tảng, bao gồm thuật ngữ chuyên ngành, quy định thiết kế, lắp đặt và vận hành, để phục vụ cho quá trình đọc hiểu bản vẽ.
- Tra cứu trực tuyến hoặc hỏi ý kiến chuyên gia: Khi gặp khó khăn trong quá trình đọc bản vẽ, bạn có thể tìm kiếm thông tin trên các trang web chuyên ngành hoặc tham khảo ý kiến từ các kỹ sư, chuyên gia thang máy. Trong trường hợp cần tư vấn nhanh chóng, chi tiết về thang máy gia đình, hãy liên hệ Kalea – đơn vị uy tín, sẵn sàng hỗ trợ giải đáp mọi thắc mắc và hướng dẫn lựa chọn giải pháp phù hợp.

5. Câu hỏi thường gặp
Câu hỏi 1: Ký hiệu có thống nhất giữa các hãng không?
Không hoàn toàn. Mặc dù các quy ước cơ bản tương tự nhau, nhưng chi tiết ký hiệu hoặc cách viết tắt có thể khác nhau tùy theo hãng sản xuất hoặc tiêu chuẩn thiết kế. Do đó, bạn cần đối chiếu theo bộ bản vẽ đã được phê duyệt chính thức.
Câu hỏi 2: Bản vẽ thang trục vít có phòng máy/hố pít không?
Thông thường, thang máy trục vít không cần phòng máy và chỉ yêu cầu hố pít nông (tùy cấu hình) nên bản vẽ thang máy trục vít cũng thường bỏ qua phòng máy và hố pít. Tuy nhiên, bạn vẫn nên kiểm tra chi tiết trong bản vẽ kỹ thuật.
Câu hỏi 3: Khi kích thước thực tế lệch bản vẽ thì xử lý sao?
Khi phát hiện sai lệch kích thước, cần báo ngay cho kỹ sư thiết kế để họ phát hành bản vẽ điều chỉnh (bản revision) trước khi thi công tiếp. Tuyệt đối không được tự ý thay đổi thông số tại hiện trường.
Mỗi ký hiệu đều mang ý nghĩa kỹ thuật cụ thể, góp phần phản ánh chính xác vị trí, kích thước và cấu tạo của hệ thống thang. Việc nắm vững ký hiệu thang máy trong bản vẽ sẽ giúp gia chủ và đơn vị thi công đọc hiểu nhanh chóng, hạn chế sai sót và đảm bảo quá trình lắp đặt diễn ra thuận lợi. Nếu bạn đang có nhu cầu lắp đặt thang máy cho gia đình hoặc doanh nghiệp, hãy liên hệ ngay với Kalea để nhận được tư vấn và hỗ trợ nhanh chóng.
Mọi thắc mắc và nhu cầu tìm hiểu thêm vui lòng liên hệ:
Kalea Lifts Việt Nam – Công ty chính hãng trực thuộc tập đoàn Cibes Lift Thụy Điển
- Hotline miễn phí: 1800 555 502.
- Website: https://kalealifts.com.vn.
- Showroom Hà Nội: P.203, Tòa HITC 239 Xuân Thủy, P.Cầu Giấy, Hà Nội.
- Showroom TP.Hồ Chí Minh: Số 86 đường B2 Khu nhà phố Saritown, KĐT SaLa, P. An Khánh, Tp. Hồ Chí Minh.
- Showroom Hải Phòng: Số HD.68, KĐT Vinhomes Marina, P.Lê Chân, Hải Phòng.
- Showroom Đà Nẵng: Số 438 đường 2/9, P. Hải Châu, Đà Nẵng.
TÌM HIỂU THÊM VỀ THANG MÁY GIA ĐÌNH KALEA
Nếu Quý khách còn nhiều băn khoăn về lựa chọn, lắp đặt thang máy gia đình, hãy liên hệ với Thang máy Kalea Việt Nam để được tư vấn chi tiết:
Kalea Lifts Việt Nam - Công ty chính hãng trực thuộc tập đoàn Cibes Lift Thụy Điển
Hotline: 1800 555 502 hoặc 0911.454.238
Website: https://kalealifts.com.vn.
Địa chỉ showroom và văn phòng:
- Showroom Hà Nội: P.203, Tòa HITC 239 Xuân Thủy, P.Cầu Giấy, Hà Nội.
- Showroom TP.Hồ Chí Minh: Số 86 đường B2 Khu nhà phố Saritown, KĐT SaLa, P. An Khánh, Tp. Hồ Chí Minh.
- Showroom Hải Phòng: Số HD.68, KĐT Vinhomes Marina, P.Lê Chân, Hải Phòng.
- Showroom Đà Nẵng: Số 438 đường 2/9, P. Hải Châu, Đà Nẵng.